Rodinný dom L
TomášovIN PROGRESS
studio: Mooods
team: Patrik Domanický
scope: Study, Building Permit
area: 699m2
client: Private
year: 2025
Koncept 1
Koncept 2
Koncept 3
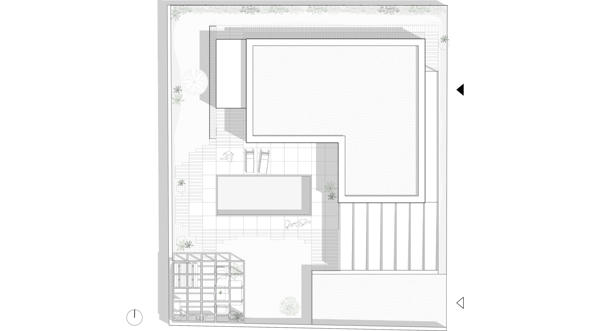
Situácia
Koncept
Pôdorys 1
Vizualizácia
Axonometria
Axonometria
Rez
Rez
Vizualizácia
Pohľad 1
Pohľad 2
Pohľad 3
Pohľad 4