Family house with a porch
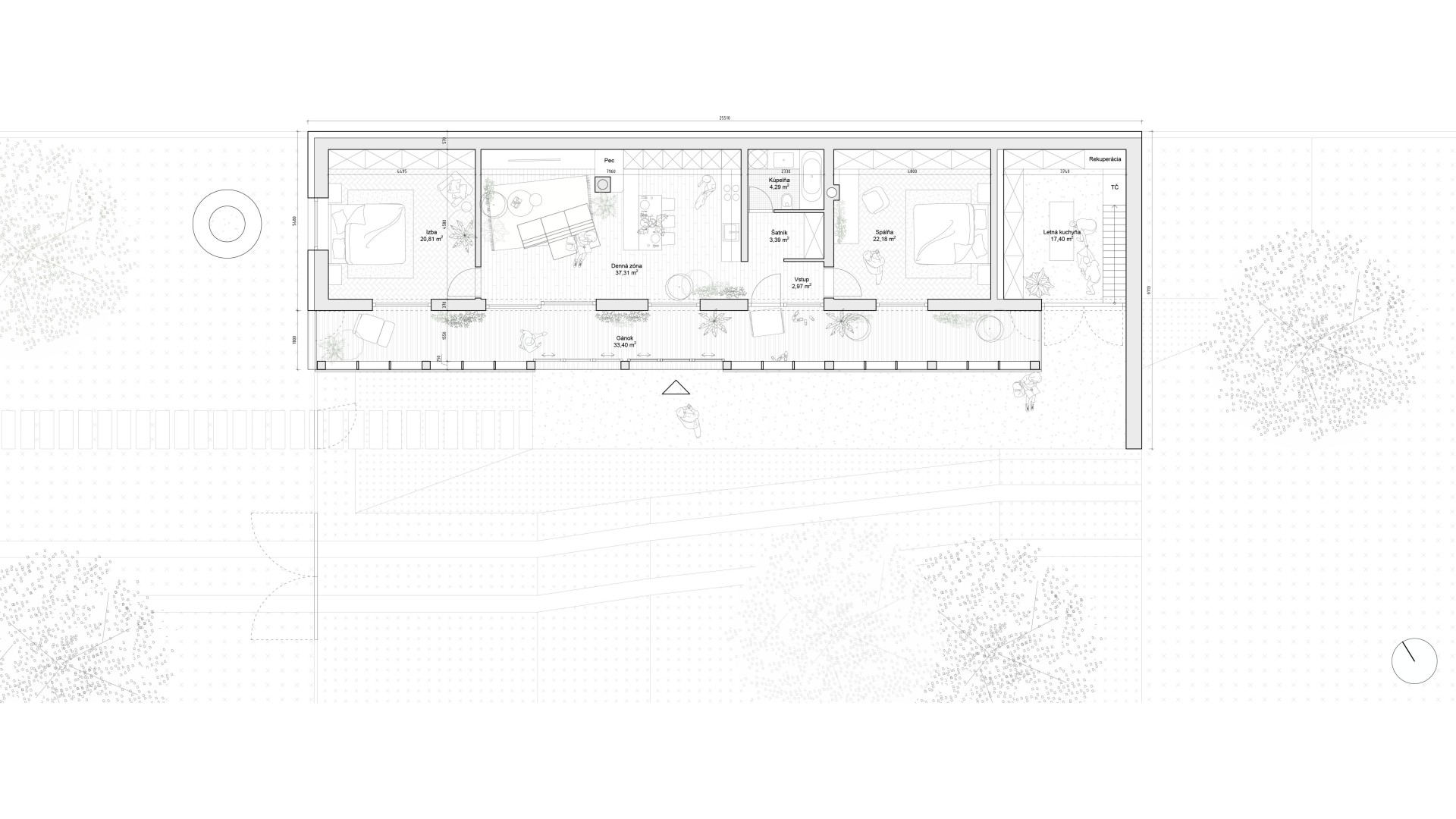
TekovA house with a gánk or gang (as it is known to the author of this text) is a house that can be found in almost every village in the region of Hont and Tekov, for example. It is a house that makes good use of the orientation to the cardinal points and opens out into a functional courtyard, which is usually complemented by a summer kitchen. The gable and the front of the house face the street to the west to maximize light into the evening, and it is usually sheltered from the south by vines that provide shading in the summer months. These principles have been developed through years of observation of nature and are translated into the functional shape of the house, the division of rooms and take into account the needs of its occupant at any given time of the year. In our design, we try to reasonably preserve these givens and improve them with contemporary knowledge and technologies that enhance comfort for contemporary living. We minimize demolition and work with already proven routes of movement through the house in the new room layout, using what is functional and durable. The new layout leaves a central open space with bedrooms to the sides, creating a clear division between day and night areas. We propose to enclose the gable and create a forecourt which will act as a connecting corridor, storage space, conservatory and will be at a different temperature to the exterior, thus avoiding the need to insulate this part of the south elevation. The main entrance is logically right in the centre of the house, where the entrance closet and bathroom are. The panels in front of the living area can be slid to open up the ganey to a wider terrace. We use the material from the demolished structures to create a shallow ramp or staircase for access to the house and to align the ground with the ganek to create a wider terrace and a barrier-free connection to the rear of the property. We are also considering a rainwater storage tank in this development. This extended terrace continues through to the summer kitchen/storage/workshop which is an important part of the house. It is on the site of the original utility area, open to the full height of the house up to the gable roof This location reflects the function of the summer kitchen - a place where cooking, harvesting and DIY takes place for most of the year.
studio: Mooods + ORA architects
autors: Patrik Domanický, Bohdan Hollý, Zoran Samol
scope: Competition proposal
area: 1 697 m2
client: Private
year: 2023
Glazing of terraces
the creation of an intermediate space between the interior and the exterior that takes advantage of heat gains
Cleaning of the layout
the original layout has been cleaned up and streamlined into its present form
Materiality
use of materials that are close to the Tekov area - wood, stone
Situation
Concept
Removal of the original entrance part in the gánk - Glazing of the gánk, obtaining heat gains - Backfilling of the soil to connect the gánk with the terrace in a barrier-free way
Floorplan of the first floor
Axonometry
Axonometry
View of the facade
Southern view
Western view
Eastern view
Northern view