Slovak Academy of Sciences - Presidency building
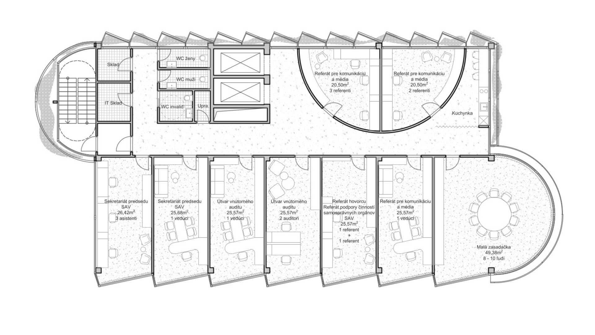
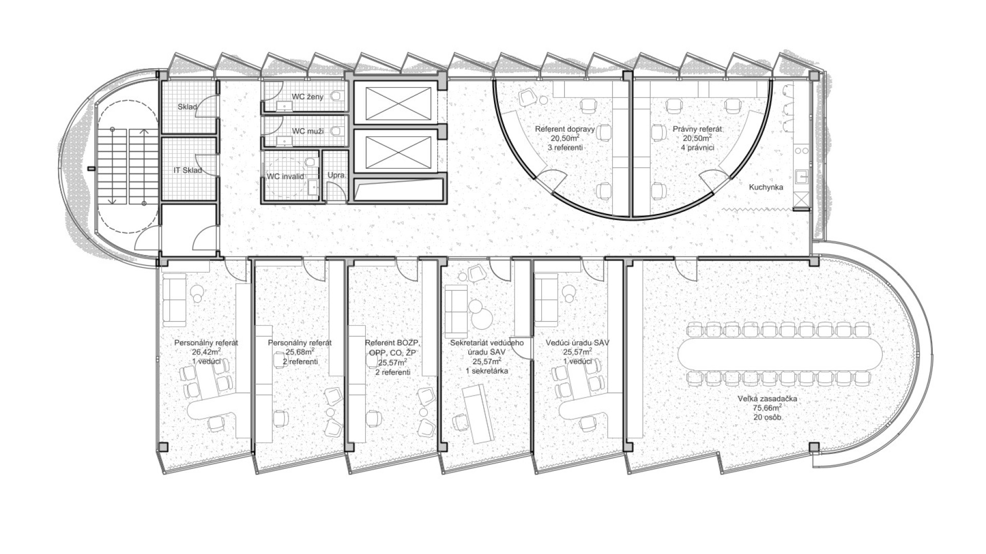
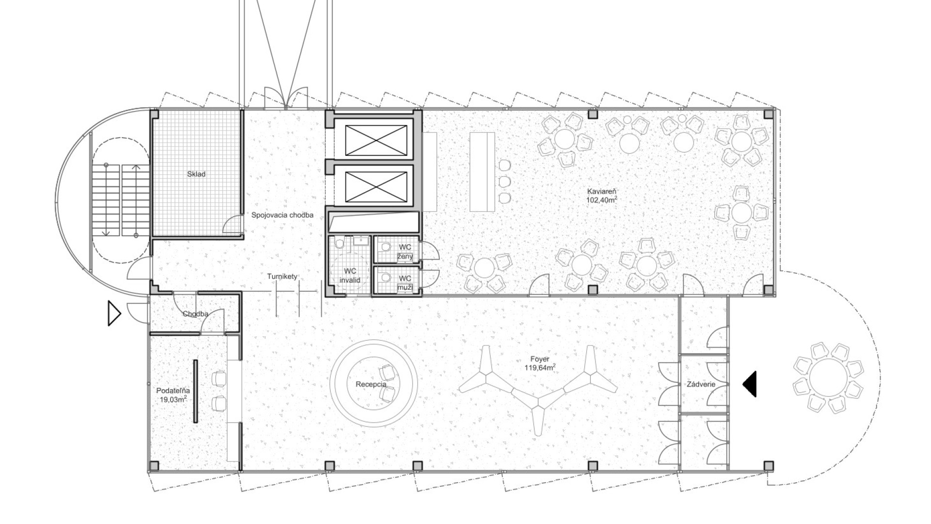
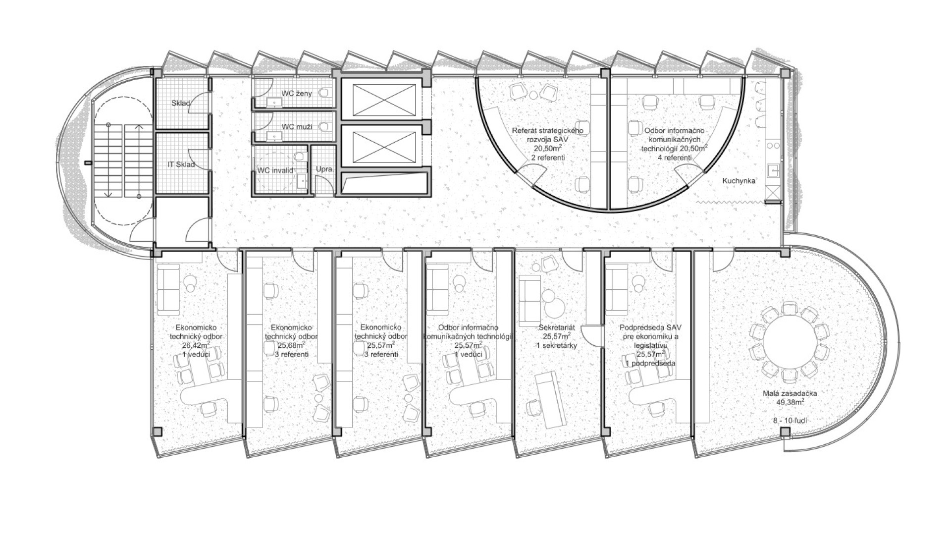
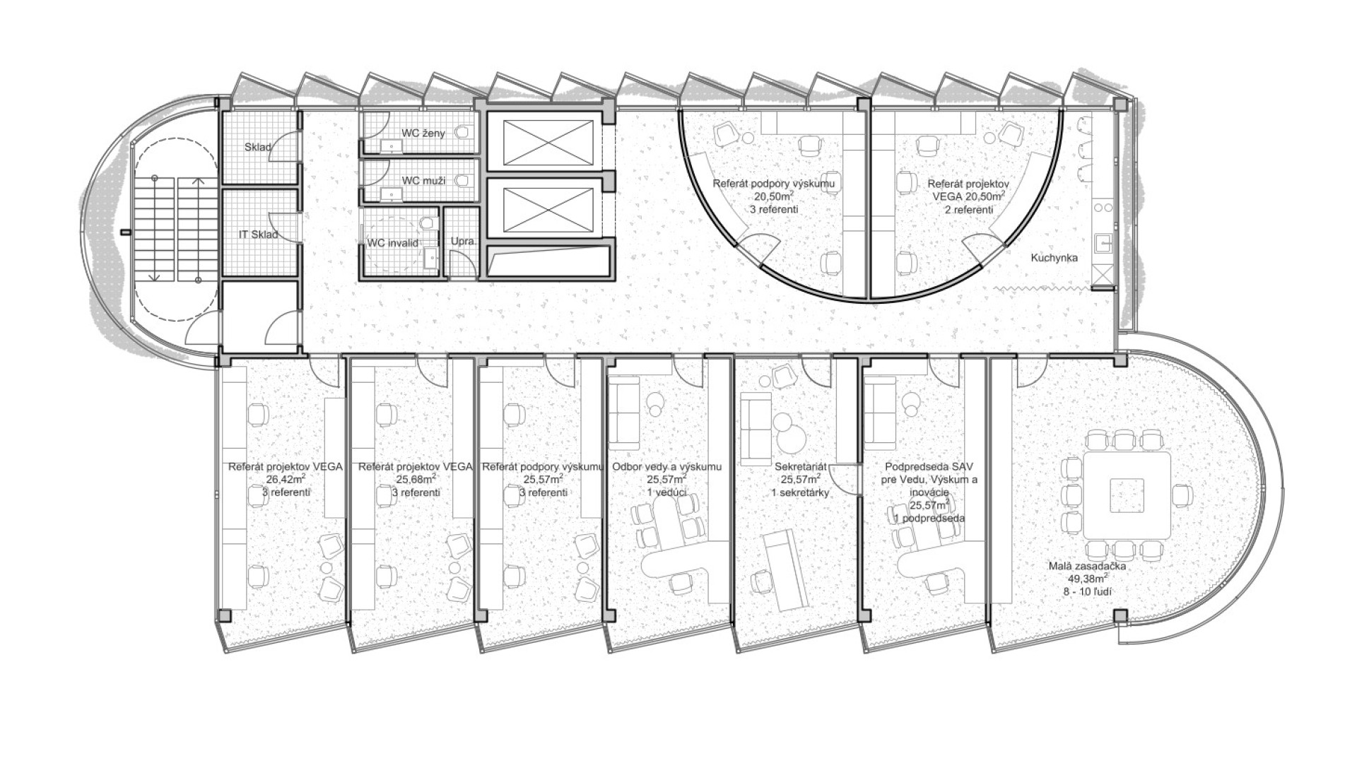
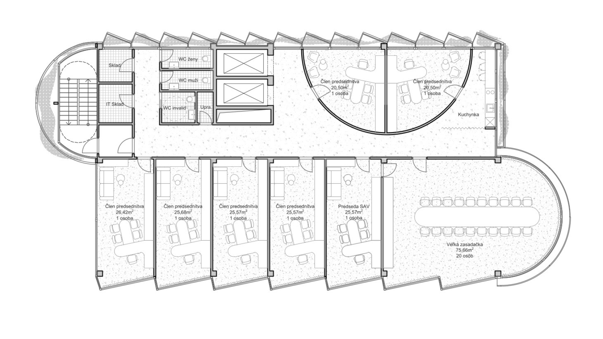
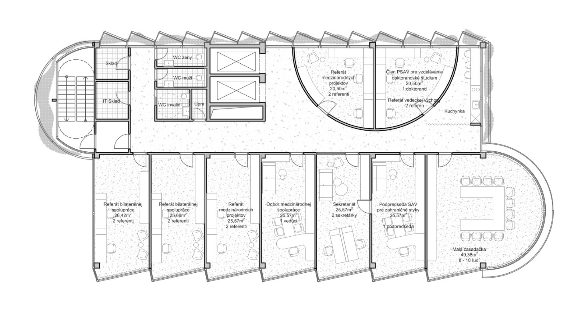
BratislavaThe design concept of the SAV Headquarters building is based on the mutual interaction between internal and external functions within a shared spatial framework. This concept is articulated through three principal themes: context, hierarchy, and interconnection. From an urban planning perspective, the SAV Headquarters completes the counterpart to the vertical mass of the Climate Cluster. The building closes the symmetrical composition in relation to the horizontal superblock to which it is connected. Within the central development area, the building is conceived as a vertical landmark. Its maximum height minimizes site coverage and, as a result, provides a greater amount of public open space. The architectural concept is derived from the fusion of two volumes into a single entity, reflecting the functional and structural division of the double-loaded layout. By shifting the two tracts by one module, a recognizable figure is created within the site while simultaneously establishing an internal spatial hierarchy. On one side, this is expressed through the green staircase core; on the other, through a vertical sequence of interior and exterior meeting rooms articulated toward the central public space of the campus. The vertical offset of the masses is achieved by placing the building technology on the roof of the service tract, discreetly screened by an architectural enclosure. The structural system consists of a reinforced concrete frame with a 7 × 7 metre module, alternatively 3.5 × 7 metres. The staircase core forms a self-supporting structural system. Elevator shafts and service facilities are positioned in the centre of the floor plan. The double-tract structural principle minimizes load-bearing elements and, together with the raised floor system, enables flexible interior layouts. The main tract accommodates offices and corner meeting rooms oriented toward the central public space, while the secondary tract contains service spaces, circulation, and atypical office units. The introduction of irregular office geometries transforms the central corridor into an open and fluid spatial environment. The main entrance to the SAV Headquarters is located beneath the corner meeting rooms, where a covered café terrace is also situated. A secondary entrance adjacent to the staircase provides access to the registry office. The ground floor remains open and visually connected to the surrounding green public space. At ground-floor level, the building is linked to Building No. 24. The working title for the façade expression is “green and glass” — a contrast of soft and rigid, transparent and opaque, living and inert material and volumetric articulation. The lower north-western office tract is fully glazed. The higher south-eastern service tract is clad in perforated metal panels intended to be gradually overgrown with vegetation. This integrated greenery improves the microclimate around the building and serves as a bearer of the cluster’s identity.
studio: Mooods
team: Patrik Domanický
scope: Competition proposal
area: 2200m2
client: SAV
locality: SAV, Bratislava
Situation
Typology of tracts - functions
Mass figure tectonics
Vertical spaces, staircase, meeting rooms
Facade Green glass
Horizontal spaces, ground floor, and roof
Overall view of the north facade
The building of the Slovak Academy of Sciences Presidency, as a vertical landmark
Sketch of the meeting room
Sketch of a corridor on a standard floor
Sketch of foyer
Axonometry
Floorplan of the first floor
Floorplan of the second floor
Floorplan of the third floor
Floorplan of the fourth floor
Floorplan of the fifth floor
Floorplan of the sixth floor
Floor plan of the seventh floor
Floorplan of the eighth floor
Floorplan of the ninth floor
Visualization of the front facade
Longitudinal section
Cross section
Detail of the north facade